Важно
Тор 10
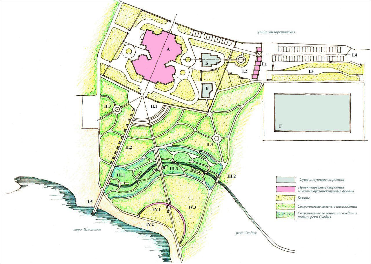
Церковь изменила архитектурную концепцию для строящегося храма у Школьного озера
Эскизный проект нового храма на Филаретовской улице. Изображение из телеграм-канала храма святителя Филарета Московского
Внешний вид храма в честь иконы Божией Матери «Скоропослушницы», который строится рядом с Филаретовской церковью, решено изменить с «византийского» на «русский».
Об этом рассказали в телеграм-канале храма святителя Филарета Московского, где опубликован обновленный эскизный проект храма. Согласно сообщению представителей Филаретовской церкви, Святейший Патриарх Московский и всея Руси Кирилл благословил обновление фасадов храма в стиле русской храмовой архитектуры еще осенью прошлого года, а в конце мая 2025 года главный архитектор храма Сергей Борисов разработал новый архитектурный проект.
Напомним, что прежнее архитектурное решение внешнего вида храма иконы Божией Матери «Скоропослушницы» Русской православной церковью летом 2018 года. Оно было основано на современном осмыслении академического «византийского» стиля, который был широко распространен в России второй половины XIX века. Первая архитектурная концепция была выбрана с помощью обсуждения и голосования в храме и социальных сетях за один из четырех . Утвержденный впоследствии проект не повторял в точности ни один из них, но напоминал тот вариант, который был поддержан наибольшим количеством участников в официальной группе Филаретовской церкви в сети «ВКонтакте». Отметим, что обновленная концепция похожа на следующий по популярности в опросе «русский» вариант.


Новый храм рядом с Филаретовской церковью в 2022 году. Нулевой цикл был завершен в апреле 2023 года, а в апреле 2025 года на собранные средства прихода и благотворителей начато строительство храмовой части комплекса до отметки +8 метров: к началу июня залиты все стены и перекрытия храма до отметки +4 метра, и ведется монтаж арматуры для заливки стен храма до отметки +8 метров.




По сообщению представителей церкви, собранных на данный момент средств хватит на строительство храма до конца июня. Помочь строительству благотворительным взносом можно по , где указаны платежные реквизиты.
Другие новости




Подписка на рассылку








